Перейти к содержанию

Покупаю дом (Нужен совет)!


Рекомендуемые сообщения

Опубликовано

Коля при оформлении земельного участка на себя, дом оформится практически автоматом, за исключением некоторых нюансов.

ну понятно, что все, что на нем стоит - мое, но я планирую постройку страховать, поэтому мне нужны на нее документы, иначе страховая не примет его.

Опубликовано

Воот, почему те человек и говорит что зачем дважды дом оформлять. это просто время и деньги, дай ему таньга и пусть он дом и землю сам на тебя оформляет, возьмешь расписку от него и ген доверенность на зем участок что он тебе его продал на основании таких то документов.

Опубликовано

он согласен оформить дом на себя, если я оплачу расходы, а потом мне его продать уже как участок, на котором стоит дом, ну или баня в данном случае

Опубликовано

а на каком основании он его продает. кем он приходится этому участку.

Опубликовано

а на каком основании он его продает. кем он приходится этому участку.

продавец собственник

Опубликовано

То на кой к.й ты его заставляешь оформится.



езжай в сель совет, или в районный центр все узнай про этот участок и строения на нем и сам все можешь оформить.

Опубликовано

То на кой к.й ты его заставляешь оформится.

блин..., че ты меня запутал уже совсем!!)))

участок оформлен в собственность, на то есть свидетельство о собственности. на участке стоит постройка (никак не оформлена). я хочу чтобы он ее тоже оформил в собственность, что на данном садовом участке стоит постройка (дом, баня и т.п.), так же получил свидетельство о собственности на эту постройку.

Опубликовано

ему это зачем, на себя оформлять. как ты не поймешь, он на этом теряет денежки, ты никуя не выигрываешь, так как это все будешь оформлять повторно на себя или супругу я там не знаю, зачем ты его заставляешь, скинь за это денег при покупке и займись этим вопросом сам.

Опубликовано

нет, мне кажется все не так!

участок оформляется на каждого собственника каждый раз, а вот дом регистрируют один раз и навсегда, просто потом он переходит к новому владельцу при переоформлении.

регистрация дома и переоформление собственности разные вещи, насколько я понимаю.

если я не прав, поправь..)

Опубликовано

нет, при покупке новым владельцем, не по наследству все передается а переоформляется на купившего собственника и земля и земельный участок так как это два разных документа, Ну как то так. Два свидетельства розового цвета у тебя будет , один на дом другой на землю.

Опубликовано

это понятно, что 2.

все равно не пойму, почему бы ему на себя дом не оформить, а потом мне его уже продавать?!

я не буду рисковать ничем - это раз.

и буду уверен, что в дальнейшем не возникнет проблем с его регистрацией.

Опубликовано

Так я тебе написал в первом своем посте, дай ему таньга и пусть он все на тебя оформляет сразу!!!

Опубликовано

что такое "таньга"??? :huh:

Опубликовано

))) ДЕНЬГИ ТО БИШЬ.



Отправлено Сегодня, 16:49

Воот, почему те человек и говорит что зачем дважды дом оформлять. это просто время и деньги, дай ему таньга и пусть он дом и землю сам на тебя оформляет, возьмешь расписку от него и ген доверенность на зем участок что он тебе его продал на основании таких то документов.

Опубликовано

Ребята, а у нас в Петербурге никто не занимается строительством срубов из бревна или бруса?

Опубликовано

ну что, никого нет, кто может помочь сложить сруб из бруса? :rolleyes:

ну не бесплатно конечно..))

Опубликовано

он согласен оформить дом на себя, если я оплачу расходы, а потом мне его продать уже как участок, на котором стоит дом, ну или баня в данном случае

Смотря о какой сумме идет речь!

Советую уточнить, сколько ему необходимо на  оформление дома, затем проконсультироваться у профильной юридической организации-сколько это будет стоить вам..

Если разницы нет- можно оформляться и самому.

Но! что касается страховки - соберите фотоматериал, градостроительную справку и т.д. (а может и не надо - уточните в страховой), затем в страховой уточняете все нюансы страхования, включая приближенность потенциально вашего дома к соседскому.

После всего этого у вас сложится объективная картина вашей будущей сделки...

Опубликовано

Парни, всем спасибо за консультацию!!!

отказался от покупки данного дома! слишком сомнительны вариант!

Опубликовано

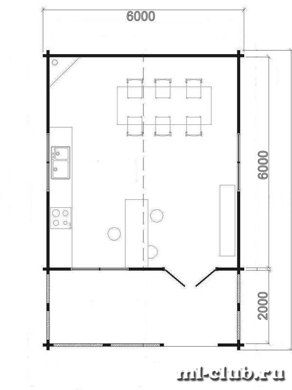
Сколько по Вашему минимальная стоимость данного варианта:

проект как на фото, только не в чашу, а в обычный угол.
-фундамент свайный
-обвязка
-брус 150х150 стены.
-крыша ондулин
-полы утепление 100мм
-шпунт
-перекрытие утепление 100мм, крыша 50мм
-входная дверь металл. с компенсацией под усадку, тоже самое с окнами
-высота в чистовой от пола до потолка 2,5м

post-10701-0-82941100-1369552656_thumb.j

post-10701-0-30006400-1369552663_thumb.j

Опубликовано

Площади в нем 50 кв.м.

по нашим ценам это от 600 тыр до 1лям- зависит от комплектации. 

Какие цени в Питере - не знаю...

Дополнительно могу сказать, что 100мм утеплителя на полу и потолке - это для нас, для Сочи!

Думаю, что в Питере это надо умножать на 2 и не будет ошибки (а еще  лучше предусмотреть сэндвич из нескольких слоев разного теплоизоляционного материала)!!!

к тому же, есть претензии и к планировке - что мешает сделать закрытую веранду, в которой поместится и маленький с/у и лестница на мансарду, которая кстати сама просится в качестве спальни (если стены после перекрытия поднять на 4 венца,  а угол стропил назначить 35 градусов, то используемая ширина комнаты-более 3 м при максимальной высоте мансарды в 2,7 м) и все -нормальный односпальный дом, площадью более 70 кв.м.!

Если есть вопросы, пишите в личку, проконсультирую и скину на почту пару эскизов, как это можно сделать.... 

  • + 1
Опубликовано

нет, с планом уже все решено..

мансарда не нужна. веранда нужна.

площадь никак не 50м, а грубо говоря 6х6+2

с полами согласен, хотя бы 150

 

и 600 это грабеж!!!

цена материалов 200 руб., а 400 за работу??? не круто ли?

Опубликовано

Пришло время отчитаться :bv:

Дом не купил и ни разу не пожалел. Купили землю, построились сами (сэкономили порядком, страшно цифры называть). Сложную работу отдал строителям, остальное доделывал сам. Вот уже 7 мес. живем наконец то в своем уголке) Первые 5 месяцев не было света, пользовались авто-преобразователем)) Пережили зиму, ничего страшного, воду с колонки возили! Сейчас все пучком, свет дали 2 месяца назад! Вот и хочу вам сказать начинаешь ценить мелочи, которые в повседневной жизни теряются. Телевизор, один канал, черно-белый с рябью - это круто!!! когда ты пол-года его не смотрел. Когда дали свет, я первые дни зависал у выключателя и просто нажимал вкл/выкл - прикольно :ges_up:  Свет горел во всем доме, все лампочки какие были, и на улице, даже не выключали)

Сейчас уже привыкли к загородной жизни. Вспоминаю тот вариант покупки, мутно, сложно, старое садоводство вместо нового свежего поселка. Инфраструктура потихоньку в поселке развивается, на днях охрану поставят, пост, потом ожидаем магазин и аптечку)

Много дней в работе сейчас, а так дел там на участке..........просто наполеоновские планы...., хотя вроде и ничего особенного не делаем.., парковочка, заборчик сейчас в процессе. Второй этаж пока закрыт, думаю к осени откроем и соберем) Пока живем на первом.

Вот как то в кратце о моей истории.. :bv:

 

P.S. ну и как бы через день жарим шашлычки, делаем гриль и коптим форельку :non_banana1: , без пива и гитары :014:  конечно не обходится)
так что будете в наши краях, милости просим  :ext_drunk:

Опубликовано

Ваще красава, поздравляю и желаю чтоб все наладилось и не переставало радовать!

Опубликовано

Пришло время отчитаться :bv:

Дом не купил и ни разу не пожалел. Купили землю, построились сами (сэкономили порядком, страшно цифры называть). Сложную работу отдал строителям, остальное доделывал сам. Вот уже 7 мес. живем наконец то в своем уголке) Первые 5 месяцев не было света, пользовались авто-преобразователем)) Пережили зиму, ничего страшного, воду с колонки возили! Сейчас все пучком, свет дали 2 месяца назад! Вот и хочу вам сказать начинаешь ценить мелочи, которые в повседневной жизни теряются. Телевизор, один канал, черно-белый с рябью - это круто!!! когда ты пол-года его не смотрел. Когда дали свет, я первые дни зависал у выключателя и просто нажимал вкл/выкл - прикольно :ges_up:  Свет горел во всем доме, все лампочки какие были, и на улице, даже не выключали)

Сейчас уже привыкли к загородной жизни. Вспоминаю тот вариант покупки, мутно, сложно, старое садоводство вместо нового свежего поселка. Инфраструктура потихоньку в поселке развивается, на днях охрану поставят, пост, потом ожидаем магазин и аптечку)

Много дней в работе сейчас, а так дел там на участке..........просто наполеоновские планы...., хотя вроде и ничего особенного не делаем.., парковочка, заборчик сейчас в процессе. Второй этаж пока закрыт, думаю к осени откроем и соберем) Пока живем на первом.

Вот как то в кратце о моей истории.. :bv:

 

P.S. ну и как бы через день жарим шашлычки, делаем гриль и коптим форельку :non_banana1: , без пива и гитары :014:  конечно не обходится)

так что будете в наши краях, милости просим  :ext_drunk:

Коля, поздравляю) а "края" то где? интересно глянуть, сам в такое мероприятие встпил

Опубликовано

Коля, поздравляю) а "края" то где? интересно глянуть, сам в такое мероприятие встпил

 наши краях, милости просим  :ext_drunk:

 

в ломоносовском районе, за ропшей. приезжай, будем мясо жарить, может буду полезным) можешь еще парочку клубней с собой захватить)

Для публикации сообщений создайте учётную запись или авторизуйтесь

Вы должны быть пользователем, чтобы оставить комментарий

Создать аккаунт

Зарегистрируйте новый аккаунт в нашем сообществе. Это очень просто!

Регистрация нового пользователя

Войти

Уже есть аккаунт? Войти в систему.

Войти
×
×
  • Создать...

Важная информация

Мы разместили cookie-файлы на ваше устройство, чтобы помочь сделать этот сайт лучше. Вы можете изменить свои настройки cookie-файлов, или продолжить без изменения настроек. Условия использования